Landzonetilladelse til solcelleanlæg på Østerballevej 4, Otterup
Nordfyns Kommune giver hermed lovliggørende tilladelse til opførelse af solcelleanlæg på matr.nr. 28c og 28d Hasmark by, Norup, beliggende Østerballevej 4, 5450 Otterup.
Afgørelse
Zonetilladelse
5450 Otterup
1. oktober 2024
3. september 2024
Tilladelsen er givet efter Planlovens § 35.
Det er en betingelse for tilladelsen,
-
at der kan meddeles byggetilladelse til det ansøgte byggeri,
-
at anlægget fjernes senest 1 år efter at anlægget ikke længere anvendes.
Tilladelsen bortfalder, hvis den ikke er udnyttet inden 5 år.
Tilladelsen må ikke udnyttes, før klagefristen er udløbet. En rettidig klage har opsættende virkning, medmindre klagemyndigheden bestemmer andet.
Tilladelsen vedrører kun forholdet til landzonebestemmelserne. Andre nødvendige tilladelser skal søges hos relevante myndigheder.
Byggeriet må ikke påbegyndes, før der er givet byggetilladelse.
Offentliggørelse
Afgørelsen offentliggøres på kommunens hjemmeside www.nordfynskommune.dk den 3/9-2024.
Landzonetilladelsen kan ikke udnyttes før klagefristen er udløbet dvs. d. 1/10-2024.
Ansøgningen
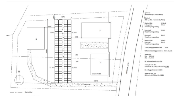
Der er søgt om tilladelse til opførelse af solcelleanlæg på ca. 214m2 på matr.nr. 28c og 28d Hasmark by, Norup, beliggende Østerballevej 4, 5450 Otterup. Ansøger oplyser, at anlægget skal anvendes til eget brug til vandværkets almindelige drift.
Kommunens landzonetilladelse er nødvendig, fordi ejendommen ligger i landzone.
Faktiske forhold
Der ansøges om opførelse af anlæg på terræn med en max. højde på ca. 1,80m. Anlægget ønskes opført i en afstand af 2,5m fra skel.

Ejendommen
Ejendommen ligger i landzone og anvendes af Hasmark Vandværk. Ejendommen har et samlet areal på ca. 1940m2.
I henhold til kommunens byggesagsarkiv og BBR.registret, er der registreret bygninger på ejendommen:
Bygning 1: Bygning til vandforsyning på 90m2
Bygning 2: Bygning til vandforsyning på 103m2
Kommuneplan
Ejendommen er omfattet af retningslinjer Nordfyns Kommuneplan 2021-2033 – BE18, Hasmark Østerballe. Heri angives at bebyggelsesprocenten for den enkelte ejendom ikke må overstige 30. Bebyggelsen må ikke opføres med mere end 1 etage med udnyttet tagetage. Bygningshøjden må ikke overstige 8,5 m.
Øvrige bindinger/udpegninger
-
Der er registreret kirkebyggelinie på ejendommen.
Nordfyns Kommune har ikke besigtiget ejendommen.
Ansøgningen har ikke været i naboorientering, da Nordfyns Kommune har vurderet, at ansøgningen er af underordnet betydning for de nærmeste naboer.
Begrundelse for afgørelsen
Nordfyns Kommune har vurderet, at der kan gives landzonetilladelse til det ansøgte. Nedenfor er kommunens samlede vurdering.
Det er Nordfyns Kommunes vurdering, at det ansøgte byggeri er tilpasset landskabet, og at det ikke er i strid med kommuneplanens udpegninger.
Der er lagt vægt på
-
Størrelsen på den ansøgte bygning vil passe naturligt ind i den eksisterende bebyggelse på ejendommen og at bygningen ikke vil have en nævneværdigt aftryk på omgivelserne.
Nordfyns Kommunes vurderer, at opførelsen af anlægget er indpasset naturligt i forhold til den nærliggende bebyggelse. Det vurderes, at det ansøgte vil have en begrænset påvirkning af de landskabelige forhold i området og naturen omkring det ansøgte.
Herudover er der i behandlingen lagt vægt på, at det ansøgte ikke tilsidesætter de hensyn som kommunen skal varetage efter planloven. Herunder de landskabelige hensyn samt hensynet til naboerne.
Natura 2000
Nordfyns Kommune vurderer, at byggearbejdet ikke vil have væsentlig indvirkning på dyre- og planteliv, herunder at der ikke vil ske forringelse eller beskadigelse af yngle-, vokse, eller rasteområder for særligt beskyttede arter jf. habitatsbekendtgørelsen.
Retsregler
Nordfyns Kommune har truffet afgørelse efter planlovens § 35.
Planlov
Planloven, lovbekendtgørelse nr. 1157 af 1. juli 2020, og senere ændringer.
Kommuneplan 2021-33 for Nordfyns Kommune.
Øvrig lovgivning
Der er ikke taget stilling til øvrig lovgivning som f.eks. byggeloven, landbrugslov, skovloven mv.
Klagevejledning
Afgørelsen kan inden 4 uger fra offentliggørelsen påklages af enhver med retlig interesse i afgørelsen samt af landsdækkende foreninger og organisationer, der som hovedformål har at beskytte natur og miljø eller varetager væsentlige brugerinteresser inden for arealanvendelsen.
Hvis klagefristen udløber en lørdag eller en helligdag, forlænges fristen til den følgende hverdag.
Klage til Planklagenævnet indgives ved anvendelse af digital selvbetjening. Du klager via Klageportalen, der findes på Planklagenævnets hjemmeside. Du logger på, ligesom du plejer, typisk med Mit-ID. Klagen sendes gennem Klageportalen til den myndighed, der har truffet afgørelsen. En klage er indgivet, når den er tilgængelig for myndigheden i Klageportalen.
Når du klager, skal du betale et gebyr, som for privatpersoner er på 900 kr. og for virksomheder, foreninger og offentlige myndigheder på 1.800 kr. Betaling af klagegebyr sker ved elektronisk overførsel til Planklagenævnet via Klageportalen.
Planklagenævnet skal som udgangspunkt afvise en klage, som ikke er indgivet ved digital selvbetjening. Nævnet kan undlade at afvise en klage, som ikke er indgivet ved digital selvbetjening, hvis der foreligger særlige forhold, der gør, at klager ikke må forventes at kunne anvende digital selvbetjening.
Hvis du ønsker at blive fritaget for at bruge Klageportalen, skal du sende en begrundet anmodning til Nordfyns Kommune. Kommunen videresender herefter anmodningen til Planklagenævnet, som træffer afgørelse om, hvorvidt din anmodning kan imødekommes.
Afgørelsen kan indbringes for domstolene inden 6 måneder fra offentliggørelsen.