Landzonetilladelse til overdækning og afslag til udhus på Vedbyvej 37, Søndersø
Nordfyns Kommune giver hermed tilladelse til lovliggørelse af to overdækninger samt et afslag til opførelse af en udbygning/et udhus på matr.nr. 16, Vedby By, Søndersø, beliggende Vedbyvej 37, Vedby, 5471 Søndersø.
Afgørelse
Zonetilladelse
5471 Søndersø
1. april 2025
4. marts 2025
Tilladelsen er givet efter Planlovens § 35.
Det er en betingelse for tilladelsen,
-
at der kan meddeles byggetilladelse til det ansøgte byggeri.
Tilladelsen bortfalder, hvis den ikke er udnyttet inden 5 år.
Tilladelsen må ikke udnyttes, før klagefristen er udløbet. En rettidig klage har opsættende virkning, medmindre klagemyndigheden bestemmer andet.
Tilladelsen vedrører kun forholdet til landzonebestemmelserne. Andre nødvendige tilladelser skal søges hos relevante myndigheder.
Offentliggørelse
Afgørelsen offentliggøres på kommunens hjemmeside www.nordfynskommune.dk den 4/3-2025.
Landzonetilladelsen kan ikke udnyttes før klagefristen er udløbet dvs. d. 2/4-2025.
Ansøgningen
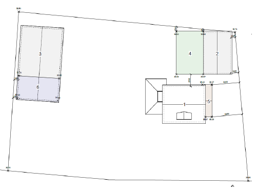
Der er søgt om lovliggørende landzonetilladelse til en overdækning ved boligen på ca. 12 m2 samt til overdækning ved garagen på ca. 60 m2 på matr.nr. 3f Gyrup by, Hjadstrup, beliggende Kappendrupvej 62, 5450 Otterup.
Der er samtidig ansøgt om opførelse af et udhus på ca. 45m2 i umiddelbart tilknytning til eksisterende udhus.
Kommunens landzonetilladelse er nødvendig, fordi ejendommen ligger i landzone.
Faktiske forhold
Der ansøges om dispensation for ejendommens samlede facadelængde i skel samt til overskridelse af bygningshøjden i skel. Dispensationerne behandles i forbindelse med byggesagsbehandlingen.
Landzonebehandlingen vedrører de to overdækninger samt den ansøgte bygning.

Ejendommen
Ejendommen ligger i landzone og er en samlet fast ejendom med et samlet areal på ca. 1700m2.
I henhold til kommunens byggesagsarkiv og BBR.registret, er der registreret tre bygninger på ejendommen:
-
Bygning 1: Fritliggende enfamilieshus på 126m2
-
Bygning 2: Garage på 54m2
-
Bygning 3: Udhus på 99m2
Kommuneplan
Ejendommen er ikke omfattet af retningslinjer Nordfyns Kommuneplan 2021-2033. Ejendommen er beliggende indenfor den i kommuneplanen udpegede afgrænsede landsby Vedby.
Øvrige bindinger/udpegninger
- Der er ingen øvrige bindinger på ejendommen.
Nordfyns Kommune har ikke besigtiget ejendommen.
I denne sag har Nordfyns Kommune skønnet, at det ansøgte er af underordnet betydning for naboerne, idet den ansøgte bebyggelse vil være en naturlig fortsættelse af de eksisterende aktiviteter på ejendommen.
Begrundelse for tilladelse til overdækning
Nordfyns Kommune har vurderet, at der kan gives landzonetilladelse til de ansøgte overdækninger da de anvendes i tilknytning med den eksisterende bolig på ejendommen. Overdækningen ved garagen er placeret ind mod grunden og har dermed begrænset påvirkning for nabo.
Nedenfor er kommunens samlede vurdering.
Det er Nordfyns Kommunes vurdering, at det ansøgte byggeri er tilpasset landskabet, og at det ikke er i strid med kommuneplanens udpegninger.
Der er lagt vægt på
- Størrelsen på det ansøgte byggeri vil passe naturligt ind i den eksisterende bebyggelse på ejendommen og at bygningen ikke vil have et nævneværdigt aftryk på omgivelserne.
Nordfyns Kommune vurderer, at opførelsen af bebyggelsen er indpasset naturligt i forhold til den nærliggende bebyggelse. Det vurderes, at det ansøgte vil have en begrænset påvirkning af de landskabelige forhold i området og naturen omkring det ansøgte.
Herudover er der i behandlingen lagt vægt på, at det ansøgte ikke tilsidesætter de hensyn som kommunen skal varetage efter planloven. Herunder de landskabelige hensyn samt hensynet til naboerne.
Begrundelse for afslag på nyt udhus
Efter en konkret vurdering af det ansøgte udhus er det Nordfyns Kommunes vurdering, at det ansøgte er i strid med de planmæssige hensyn, samt de landskabelige og naturmæssige hensyn, kommunen skal varetage i henhold til Planloven. Nordfyns Kommune kan derfor ikke meddele tilladelse til det ansøgte projekt.
Det er Nordfyns Kommunes vurdering, at opførelsen af ca. 45m2 udhus vil være at sidestille med en spredning af boligbebyggelse i landzone, hvilket er i strid med intensionerne i Planloven.
Nordfyns Kommune lægger i afgørelsen afgørende vægt på, at der på ejendommen i forvejen er registreret 99m2 garage. Der vil med en tilladelse være udhuse, garage mv. på samlet 198m2 på ejendommen.
Planklagenævnet har i lignende sag anført:
'Efter hidtidig praksis kan der normalt gives landzonetilladelse til opførelse af nye udhuse og garager m.v. i størrelsesordenen 50-100 m2. Ved den konkrete vurdering indgår bl.a. ejendommens størrelse, omfanget af eksisterende udhusbygninger samt placeringen af den ansøgte bygning. Efter hidtidig praksis gives ikke tilladelse til udhusbygninger på mere end 100 m2, medmindre der foreligger helt særlige omstændigheder.'
Det er Nordfyns Kommunes vurdering, at der i nærliggende sag ikke foreligger helt særlige omstændigheder, der kan retfærdiggøre en afvigelse fra hidtidig praksis på området.
Nordfyns Kommune ser sig derfor nødsaget til at meddele afslag på den fremsendte ansøgning om opførelse af udhus.
Natura 2000
Nordfyns Kommune vurderer, at byggearbejdet ikke vil have væsentlig indvirkning på dyre- og planteliv, herunder at der ikke vil ske forringelse eller beskadigelse af yngle-, vokse, eller rasteområder for særligt beskyttede arter jf. habitatsbekendtgørelsen.
Retsregler
Nordfyns Kommune har truffet afgørelse efter planlovens § 35.
Planlov
Planloven, lovbekendtgørelse nr. 1157 af 1. juli 2020, og senere ændringer.
Kommuneplan 2021-33 for Nordfyns Kommune.
Øvrig lovgivning
Der er ikke taget stilling til øvrig lovgivning som f.eks. byggeloven, landbrugslov, skovloven mv.
Klagevejledning
Afgørelsen kan inden 4 uger fra offentliggørelsen påklages af enhver med retlig interesse i afgørelsen samt af landsdækkende foreninger og organisationer, der som hovedformål har at beskytte natur og miljø eller varetager væsentlige brugerinteresser inden for arealanvendelsen.
Hvis klagefristen udløber en lørdag eller en helligdag, forlænges fristen til den følgende hverdag.
Klage til Planklagenævnet indgives ved anvendelse af digital selvbetjening. Du klager via Klageportalen, der findes på Planklagenævnets hjemmeside. Du logger på, ligesom du plejer, typisk med MitID. Klagen sendes gennem Klageportalen til den myndighed, der har truffet afgørelsen. En klage er indgivet, når den er tilgængelig for myndigheden i Klageportalen.
Når du klager, skal du betale et gebyr, som for privatpersoner er på 900 kr. og for virksomheder, foreninger og offentlige myndigheder på 1.800 kr. Betaling af klagegebyr sker ved elektronisk overførsel til Planklagenævnet via Klageportalen.
Planklagenævnet skal som udgangspunkt afvise en klage, som ikke er indgivet ved digital selvbetjening. Nævnet kan undlade at afvise en klage, som ikke er indgivet ved digital selvbetjening, hvis der foreligger særlige forhold, der gør, at klager ikke må forventes at kunne anvende digital selvbetjening.
Hvis du ønsker at blive fritaget for at bruge Klageportalen, skal du sende en begrundet anmodning til Nordfyns Kommune. Kommunen videresender herefter anmodningen til Planklagenævnet, som træffer afgørelse om, hvorvidt din anmodning kan imødekommes.
Afgørelsen kan indbringes for domstolene inden 6 måneder fra offentliggørelsen.