Landzonetilladelse til depot mv. på Flyvesandsvej 27, Otterup
Nordfyns Kommune giver hermed tilladelse til opførelse af ny bygning til depot, fryserum og affaldsrum i tilknytning til Efterskolen Flyvesandet på matr.nr. 1z Egebjerggård Hgd Krogsbølle, beliggende Flyvesandsvej 27, 5450 Otterup.
Afgørelse
Zonetilladelse
5450 Otterup
23. juli 2024
25. juni 2024
Tilladelsen er givet efter Planlovens § 35.
Tilladelsen bortfalder, hvis den ikke er udnyttet inden 5 år.
Tilladelsen må ikke udnyttes, før klagefristen er udløbet. En rettidig klage har opsættende virkning, medmindre klagemyndigheden bestemmer andet.
Tilladelsen vedrører kun forholdet til landzonebestemmelserne. Andre nødvendige tilladelser skal søges hos relevante myndigheder.
Offentliggørelse
Afgørelsen offentliggøres på kommunens hjemmeside www.nordfynskommune.dk den 25/6-2024.
Landzonetilladelsen kan ikke udnyttes før klagefristen er udløbet dvs. d. 23/7-2024.
Ansøgningen
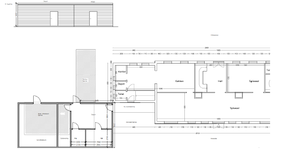
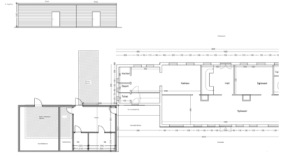
Der er søgt tilladelse til opførelse af nyt ca. 102m2 bygning til anvendelse til depot, fryserum og affaldshus til brug for Efterskolen på matr.nr. 1z Egebjerggård Hgd Krogsbølle, beliggende Flyvesandsvej 27, 5450 Otterup.


Kommunens landzonetilladelse er nødvendig, fordi ejendommen ligger i landzone og idet der tidligere er meddelt tilladelse til en ændret anvendelse af bygning fra stald til beboelse.
Ejendommen
Ejendommen ligger i landzone og er en landbrugsejendom på ca. 1,5 ha.
I henhold til kommunens byggesagsarkiv og BBR.registret, er der på ejendommen noteret følgende bygninger:
-
Bygning 1: Kontor på 470 m2.
-
Bygning 2: Grundskole på 229 m2.
-
Bygning 3: Boligbygning til inst på 157 m2.
-
Bygning 4: Grundskole på 248 m2.
-
Bygning 5: Grundskole på 423 m2.
-
Bygning 6: Grundskole på 613 m2.
-
Bygning 7: Udhus på 42 m2.
-
Bygning 8: Udhus på 260 m2.
-
Bygning 10: Undervisning på 100 m2.
Kommuneplan
Ejendommen er i Nordfyns Kommuneplan ikke omfattet af rammebestemmelser.
Øvrige bindinger/udpegninger
- Skovbyggelinie
Besigtigelse og orientering
Nordfyns Kommune har ikke besigtiget ejendommen.
I denne sag har Nordfyns Kommune skønnet, at det ansøgte er af underordnet betydning for naboerne, idet ejendommen er beliggende med fritliggende landbrugsarealer på alle side.
Begrundelse for afgørelsen
Nordfyns Kommune har vurderet, at der kan gives landzonetilladelse til det ansøgte. Nedenfor er kommunens samlede vurdering.
Det er Nordfyns Kommunes vurdering, at det ansøgte ikke har nogen landskabsmæssig påvirkning, og at det ansøgte projekt ikke er i strid med kommuneplanens udpegninger.
Der er lagt vægt på
-
at den ansøgte bygning er placeret i tilknytning til den øvrige bygningsmasse og at anvendelsen af bygningen er direkte afledt af anvendelsen af ejendommen
Nordfyns Kommunes vurderer, at det ansøgte er naturligt indpasset i de landskabelige forhold omkring ejendommen.
Herudover er der i behandlingen lagt vægt på, at det ansøgte ikke tilsidesætter de hensyn som kommunen skal varetage efter planloven. Herunder de landskabelige hensyn samt hensynet til naboerne.
Natura 2000
Nordfyns Kommune vurderer, at det ansøgte ikke vil have væsentlig indvirkning på dyre- og planteliv, herunder at der ikke vil ske forringelse eller beskadigelse af yngle-, vokse, eller rasteområder for særligt beskyttede arter jf. habitatsbekendtgørelsen.
Retsregler
Nordfyns Kommune har truffet afgørelse efter planlovens § 35.
Landzonen skal ifølge planloven friholdes for bebyggelse, der ikke er nødvendig for driften af landbrug, skovbrug og fiskeri.
Planlov
Planloven, lovbekendtgørelse nr. 1157 af 1. juli 2020, og senere ændringer
Kommuneplan 2021-33 for Nordfyns Kommune
Klagevejledning
Afgørelsen kan inden 4 uger fra offentliggørelsen påklages af enhver med retlig interesse i afgørelsen samt af landsdækkende foreninger og organisationer, der som hovedformål har at beskytte natur og miljø eller varetager væsentlige brugerinteresser inden for arealanvendelsen.
Hvis klagefristen udløber en lørdag eller en helligdag, forlænges fristen til den følgende hverdag.
Klage til Planklagenævnet indgives ved anvendelse af digital selvbetjening. Du klager via Klageportalen, der findes på Planklagenævnets hjemmeside. Du logger på, ligesom du plejer, typisk med MitID. Klagen sendes gennem Klageportalen til den myndighed, der har truffet afgørelsen. En klage er indgivet, når den er tilgængelig for myndigheden i Klageportalen.
Når du klager, skal du betale et gebyr, som for privatpersoner er på 900 kr. og for virksomheder, foreninger og offentlige myndigheder på 1.800 kr. Betaling af klagegebyr sker ved elektronisk overførsel til Planklagenævnet via Klageportalen.
Planklagenævnet skal som udgangspunkt afvise en klage, som ikke er indgivet ved digital selvbetjening. Nævnet kan undlade at afvise en klage, som ikke er indgivet ved digital selvbetjening, hvis der foreligger særlige forhold, der gør, at klager ikke må forventes at kunne anvende digital selvbetjening.
Hvis du ønsker at blive fritaget for at bruge Klageportalen, skal du sende en begrundet anmodning til Nordfyns Kommune. Kommunen videresender herefter anmodningen til Planklagenævnet, som træffer afgørelse om, hvorvidt din anmodning kan imødekommes.
Afgørelsen kan indbringes for domstolene inden 6 måneder fra offentliggørelsen.