Landzonetilladelse til bolig på Halsvej 53, Bogense
Nordfyns Kommune giver hermed tilladelse til genopførelse af helårsbolig samt to udhuse på matr. 11n, Nørreby By, Klinte, Halsvej 53, 5400 Bogense.
Afgørelse
Zonetilladelse
5400 Bogense
24. september 2024
27. august 2024
Tilladelsen er givet efter Planlovens § 35.
Det er en betingelse for tilladelsen,
at der kan meddeles byggetilladelse til det ansøgte byggeri.
Tilladelsen bortfalder, hvis den ikke er udnyttet inden 5 år.
Tilladelsen må ikke udnyttes, før klagefristen er udløbet. En rettidig klage har opsættende virkning, medmindre klagemyndigheden bestemmer andet.
Tilladelsen vedrører kun forholdet til landzonebestemmelserne. Andre nødvendige tilladelser skal søges hos relevante myndigheder. Der er meddelt dispensation efter naturbeskyttelsesloven pr. 14/6-2023.
Byggeriet må ikke påbegyndes, før der er givet byggetilladelse.
Offentliggørelse
Afgørelsen offentliggøres på kommunens hjemmeside www.nordfynskommune.dk den 27/8-2024.
Landzonetilladelsen kan ikke udnyttes før klagefristen er udløbet dvs. d. 24/9-2024.
Ansøgningen
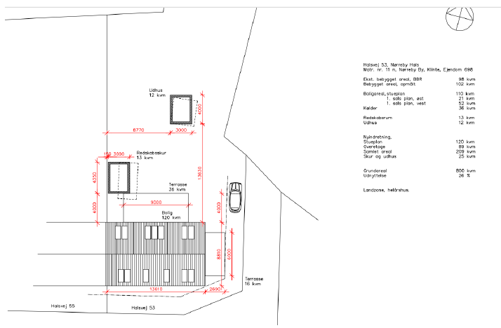
Der er søgt om tilladelse til nedrivning og genopførelse af eksisterende ældre beboelsesbygning, der er sammenbygget med nabobebyggelsen 11n Nørreby By, Klinte, Halsvej 53, 5400 Bogense.
Boligen ønskes nedrevet og der opføres en ny med et bebygget areal på 120 m² og 96 m² udnyttet overetage – i alt 216 m² boligareal. Boligen opføres med et udseende tilsvarende den eksisterende og sammenbygget med naboejendommen således helhedsindtrykket ikke ændres i området. To skure ønskes genopført med samme placeringer, men med forøget arealer.
Kommunens landzonetilladelse er nødvendig, fordi ejendommen ligger i landzone.
Faktiske forhold
Der ansøges om opførelse af helårsbeboelse med et etageareal på 216 m2 efter de indsendte bygningstegninger.
Kystdirektoratets har meddelt dispensation til at opføre en ny bolig som ansøgt. De eksisterende skure kan genopføres på eksisterende placeringer således at det samlede skurareal ikke overstiger 25 m² samt at det største skur placeres nærmest boligen.

Ejendommen
Ejendommen ligger i landzone og er en beboelsesejendom på ca. 800 m2.
Ejendommen ligger helt ud til vandet med naboejendommen som eneste nabo. De to beboelsesbygninger er sammenbyggede.
I henhold til kommunens byggesagsarkiv og BBR.registret, er der registreret bolig på 110m2.
Der er søgt nedrivnings- og byggetilladelse til fjernelse af de tidligere bygninger på ejendommen og genopførelse af tilsvarende.
Kommuneplan
Ejendommen er ikke omfattet af retningslinjer Nordfyns Kommuneplan 2021-2033.
Øvrige bindinger/udpegninger
-
Kystnærhedszonen
-
Strandbeskyttelseslinie
-
Natura 2000 område
Det er Nordfyns Kommunes vurdering, at den ansøgte genopførelse af sommerhuset vil have en meget begrænset indflydelse på kystnærhedszonen, idet der er tale om en opførelse med samme visuelle udtryk, størrelse og materialevalg som den eksisterende bebyggelse på ejendommen.
Nordfyns Kommune har ikke besigtiget ejendommen.
Ansøgningen har ikke været sendt i naboorientering idet Nordfyns Kommune vurderer, at det ansøgte ikke er af væsentlig betydning for naboerne.
Begrundelse for afgørelsen
Nordfyns Kommune har vurderet, at der kan gives landzonetilladelse til det ansøgte.
Nedenfor er kommunens samlede vurdering.
Det er Nordfyns Kommunes vurdering, at det ansøgte byggeri er tilpasset landskabet, og at det ikke er i strid med kommuneplanens udpegninger.
Der er lagt vægt på
-
At det ansøgte får et sammenligneligt visuelt udtryk, størrelse og materialevalg som det eksisterende byggeri på naboejendommen,
-
At der forinden er meddelt dispensation fra Kystdirektoratet, der sikrer bebyggelsens indpasning i kystnærhedszone og strandbeskyttelsesbestemmelserne.
Nordfyns Kommunes vurderer, at det ansøgte vil have en begrænset påvirkning af de landskabelige forhold i området og naturen omkring det ansøgte.
Herudover er der i behandlingen lagt vægt på, at det ansøgte ikke tilsidesætter de hensyn som kommunen skal varetage efter planloven. Herunder de landskabelige hensyn samt hensynet til naboerne.
Natura 2000
Nordfyns Kommune vurderer, at byggearbejdet ikke vil have væsentlig indvirkning på dyre- og planteliv, herunder at der ikke vil ske forringelse eller beskadigelse af yngle-, vokse, eller rasteområder for særligt beskyttede arter jf. habitatsbekendtgørelsen.
Retsregler
Nordfyns Kommune har truffet afgørelse efter planlovens § 35.
Planlov
Planloven, lovbekendtgørelse nr. 1157 af 1. juli 2020, og senere ændringer.
Kommuneplan 2017-29 for Nordfyns Kommune.
Øvrig lovgivning
Der er ikke taget stilling til øvrig lovgivning som f.eks. byggeloven, landbrugslov, skovloven mv.
Klagevejledning
Afgørelsen kan inden 4 uger fra offentliggørelsen påklages af enhver med retlig interesse i afgørelsen samt af landsdækkende foreninger og organisationer, der som hovedformål har at beskytte natur og miljø eller varetager væsentlige brugerinteresser inden for arealanvendelsen.
Hvis klagefristen udløber en lørdag eller en helligdag, forlænges fristen til den følgende hverdag.
Klage til Planklagenævnet indgives ved anvendelse af digital selvbetjening. Du klager via Klageportalen, der findes på Planklagenævnets hjemmeside. Du logger på, ligesom du plejer, typisk med MitID. Klagen sendes gennem Klageportalen til den myndighed, der har truffet afgørelsen. En klage er indgivet, når den er tilgængelig for myndigheden i Klageportalen.
Når du klager, skal du betale et gebyr, som for privatpersoner er på 900 kr. og for virksomheder, foreninger og offentlige myndigheder på 1.800 kr. Betaling af klagegebyr sker ved elektronisk overførsel til Planklagenævnet via Klageportalen.
Planklagenævnet skal som udgangspunkt afvise en klage, som ikke er indgivet ved digital selvbetjening. Nævnet kan undlade at afvise en klage, som ikke er indgivet ved digital selvbetjening, hvis der foreligger særlige forhold, der gør, at klager ikke må forventes at kunne anvende digital selvbetjening.
Hvis du ønsker at blive fritaget for at bruge Klageportalen, skal du sende en begrundet anmodning til Nordfyns Kommune. Kommunen videresender herefter anmodningen til Planklagenævnet, som træffer afgørelse om, hvorvidt din anmodning kan imødekommes.
Afgørelsen kan indbringes for domstolene inden 6 måneder fra offentliggørelsen.
