Landzonetilladelse til ændret anvendelse af bygninger
Nordfyns Kommune giver hermed tilladelse til en ændret anvendelse fra kontor og værksted til beboelse i eksisterende bygninger på matr.nr. 4k Egense by, Norup, beliggende Storhøjvej 52, 5450 Otterup.
Afgørelse
Zonetilladelse
5450 Otterup
16. januar 2024
19. december 2023
Tilladelsen er givet efter Planlovens § 35.
Det er en betingelse for tilladelsen,
-
at der kan meddeles byggetilladelse til det ansøgte byggeri.
Tilladelsen bortfalder, hvis den ikke er udnyttet inden 5 år.
Tilladelsen må ikke udnyttes, før klagefristen er udløbet. En rettidig klage har opsættende virkning, medmindre klagemyndigheden bestemmer andet.
Tilladelsen vedrører kun forholdet til landzonebestemmelserne. Andre nødvendige tilladelser skal søges hos relevante myndigheder.
Ombygning må ikke påbegyndes, før der er givet byggetilladelse.
Offentliggørelse
Afgørelsen offentliggøres på kommunens hjemmeside www.nordfynskommune.dk den 19/12-2023.
Landzonetilladelsen kan ikke udnyttes før klagefristen er udløbet dvs. d. 16/1-2024.
Ansøgningen
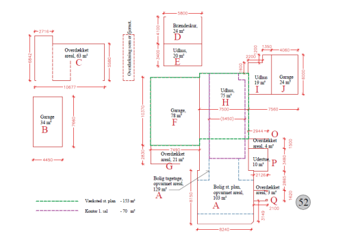
Der er søgt om tilladelse til at ændre anvendelse af 153m2 værksted samt 70m2 kontor (på 1.sal) til beboelse på matr.nr. 4k Egense by, Norup, beliggende Storhøjvej 52, 5450 Otterup.
Kommunens landzonetilladelse er nødvendig, fordi ejendommen ligger i landzone og idet anvendelsen ændres.
Faktiske forhold
Der er i dag godkendt værksted i stueetagen af bygning 2 samt kontor på 1.sal af bygning 1+2. Værksted og kontor ønskes nedlagt og omdannet til beboelse.

Ejendommen
Ejendommen ligger i landzone og er en beboelses- og forretningsejendom på ca. 1,4 ha. Ejendommen har erhverv og bolig som nabo mod syd.
I henhold til kommunens byggesagsarkiv og BBR.registret, er der registreret følgende bygninger på ejendommen:
Bygning 1: Fritliggende beboelsesbygning på 202m2
Bygning 2: værksted på 250m2 (BBR areal ændres ved opmåling)
Bygning 3: anneks i tilknytning til helårsbolig på 18m2
Bygning 4: carport på 35m2
Bygning 5: udhus på 57m2
Bygning 6: udhus på 72m2
Bygning 7: carport på 40m2
Bygning 8: Fritliggende overdækning på 9m2
Bygning 9: udhus på 20m2
Bygning 10: udhus på 19m2
De angivne arealer på de enkelte bygninger forventes tilrettet i forbindelse med behandlingen af byggesagen efterfølgende.
Kommuneplan
Ejendommen er beliggende inden for den afgrænsede landsby Egense i Nordfyns Kommuneplan 2021-2033.
Øvrige bindinger/udpegninger
-
Der er ingen øvrige bindinger på ejendommen
Nordfyns Kommune har ikke besigtiget ejendommen.
Ansøgningen har ikke været sendt i naboorientering idet Nordfyns Kommune har vurderet, at det er af underordnet betydning for dem.
Begrundelse for afgørelsen
Nordfyns Kommune har vurderet, at der kan gives landzonetilladelse til det ansøgte. Nedenfor er kommunens samlede vurdering.
Det er Nordfyns Kommunes vurdering, at den ansøgte ændrede anvendelse ikke er i strid med kommuneplanens udpegninger idet ejendommen er beliggende i en afgrænset landsby.
Nordfyns Kommunes vurderer at en ændring af ejendommen fra en delvis forretning og beboelsesejendom til ren beboelse, vil kunne indpasses naturligt i forhold til den nærliggende bebyggelse. Det vurderes, at det ansøgte vil have en begrænset påvirkning af de landskabelige forhold i området og naturen omkring det ansøgte.
Herudover er der i behandlingen lagt vægt på, at det ansøgte ikke tilsidesætter de hensyn som kommunen skal varetage efter planloven. Herunder de landskabelige hensyn samt hensynet til naboerne.
Natura 2000
Nordfyns Kommune vurderer, at byggearbejdet ikke vil have væsentlig indvirkning på dyre- og planteliv, herunder at der ikke vil ske forringelse eller beskadigelse af yngle-, vokse, eller rasteområder for særligt beskyttede arter jf. habitatsbekendtgørelsen.
Retsregler
Nordfyns Kommune har truffet afgørelse efter planlovens § 35.
Planlov
Planloven, lovbekendtgørelse nr. 1157 af 1. juli 2020, og senere ændringer.
Kommuneplan 2021-33 for Nordfyns Kommune.
Øvrig lovgivning
Der er ikke taget stilling til øvrig lovgivning som f.eks. byggeloven, landbrugslov, skovloven mv.
Klagevejledning
Afgørelsen kan inden 4 uger fra offentliggørelsen påklages af enhver med retlig interesse i afgørelsen samt af landsdækkende foreninger og organisationer, der som hovedformål har at beskytte natur og miljø eller varetager væsentlige brugerinteresser inden for arealanvendelsen.
Hvis klagefristen udløber en lørdag eller en helligdag, forlænges fristen til den følgende hverdag.
Klage til Planklagenævnet indgives ved anvendelse af digital selvbetjening. Du klager via Klageportalen, der findes på Planklagenævnets hjemmeside. Du logger på, ligesom du plejer, typisk med Mit-ID. Klagen sendes gennem Klageportalen til den myndighed, der har truffet afgørelsen. En klage er indgivet, når den er tilgængelig for myndigheden i Klageportalen.
Når du klager, skal du betale et gebyr, som for privatpersoner er på 900 kr. og for virksomheder, foreninger og offentlige myndigheder på 1.800 kr. Betaling af klagegebyr sker ved elektronisk overførsel til Planklagenævnet via Klageportalen. Planklagenævnet skal som udgangspunkt afvise en klage, som ikke er indgivet ved digital selvbetjening. Nævnet kan undlade at afvise en klage, som ikke er indgivet ved digital selvbetjening, hvis der foreligger særlige forhold, der gør, at klager ikke må forventes at kunne anvende digital selvbetjening.
Hvis du ønsker at blive fritaget for at bruge Klageportalen, skal du sende en begrundet anmodning til Nordfyns Kommune. Kommunen videresender herefter anmodningen til Planklagenævnet, som træffer afgørelse om, hvorvidt din anmodning kan imødekommes.
Afgørelsen kan indbringes for domstolene inden 6 måneder fra offentliggørelsen.
